为全面贯彻落实党的二十大精神,推进新区住宅高质量发展、绿色低碳可持续发展,持续优化新区营商环境,进一步提高居住建筑品质,新区先行先试,根据《山东省青岛西海岸新区条例》、《推进青岛西海岸新区高质量发展三年行动计》(2023-2035年)、《民用建筑通用规范》(GB55031-2022)、《建筑工程建筑面积计算规范》(GB/T50353-2013)、《青岛市建筑工程建筑面积及规划指标计算技术细则》等国家标准及规章的规定,结合国家省市相关政策要求与新区实际,制定了《西海岸新区优化居住建筑品质的七条措施(征求意见稿)》(见附件),现向社会公开征求意见。
一、提出意见和建议,请遵守相关法律法规;
二、为便于联系并对意见归纳整理和分析,请尽量如实写明有关单位或个人的名称、联系方式等信息;
三、公示时间:2024年2月21日至2024年3月21日;
四、在征求意见期内,任何单位和个人均可通过以下方式提出意见:
(一)通过信函形式发至青岛西海岸新区长江东路443号福瀛大厦2303房间(建筑管理科);
(二)联系人:王工,联系电话0532-85166673;
(三)通过电子邮件形式发至86995762@163.com。
青岛西海岸新区自然资源局
2024年2月21日
为全面贯彻落实党的二十大精神,推进新区住宅高质量发展、绿色低碳可持续发展,持续优化新区营商环境,进一步提高居住建筑品质,新区先行先试,根据《民用建筑通用规范》(GB55031-2022)、《建筑工程建筑面积计算规范》(GB/T50353-2013)、《青岛市建筑工程建筑面积及规划指标计算技术细则》等国家标准及规章的规定,结合国家省市相关政策要求与新区实际,提出如下措施。
第一条 新建住宅工程面积指标应当按照建筑面积和计算容积率建筑面积分别核算。
第二条 新建住宅工程在核定容积率时,下列情形不计入容积率建筑面积:
1.建筑物屋顶的梯屋、水箱间、电梯机房、人防间等设施设备用房,累计面积不大于屋顶面积25%时。
2.建筑(除低层住宅以外)首层可以布置层高不低于3.9米的架空层,且首层除必要的垂直交通空间、入口大堂及设备设施用房外,只作为公共休闲、交通、绿化等公共开敞空间使用。
3.建筑避难层中的避难空间。
4.商住混合建筑的转换层。
5.新建住宅小区内按照相关规范要求配置的配电室、换热站、公厕、垃圾分类收集用房、快递末端公共服务站、助老大食堂等公共服务设施。
6.建筑外墙面抹灰、装修面、镶贴块料面层、装饰性幕墙。
7.新建住宅小区内独立设置的电动自行车集中存放和充电场所,以及非机动车坡道和机动车坡道的轻质结构车库出入口顶棚,且该通道为地下通道的一部分。
8.符合现行法律、法规、规章规定并经住房和城乡建设主管部门认定的因实施绿色建筑技术、装配式技术而必须增加的建筑空间。
9.其他法律法规规章规定的情形。
第三条 开敞式阳台、封闭式阳台进深不超过2.1米的部分均按照1/2建筑面积计入容积率,进深超过2.1米的部分按照全面积计入容积率。
第四条 套内建筑面积超过144㎡的住宅,其客厅挑空部分层高不大于5.6m时,按其水平投影面积计算容积率建筑面积。
对层高有特殊要求的空间,如建筑门厅、大堂等公共部分,按其水平投影面积计算容积率建筑面积。
第五条 测绘单位在进行房屋预、实测时,文件中需按照房产测量规范(GB/T17986-2000)进行分摊的部分,不计入分摊面积,单独计算面积。工程竣工后,不动产登记中心根据房屋测绘报告信息出具《不动产权籍调查成果信息汇总单》时,一并备注规划审批时不计入容积率的相关房屋及面积,并按照复核结果进行成果入库并办理不动产登记手续。土地复核和房屋实测面积复核时,按照规划审批的计容面积办理。不计入容积率的相关房屋实测超出规划审批的面积可直接办理登记。
第六条 优化房地产开发用地出让条件。综合地块位置、所在区域新建商品房和土地成交价格,考量房企开发利润,科学设定土地出让起拍价格。土地出让竞买保证金可按最低比例(起始价的20%)缴纳。
第七条 本文件自2024年3月1日起试行,有效期二年。未办理房屋预售手续的整宗土地上的住宅工程可执行上述措施。如遇政策调整,按有关规定执行。
本文件由区自然资源局负责组织实施。未尽事宜由区自然资源局负责解释。
附件
相关图示
一、首层除必要的垂直交通空间、入口大堂及设备设施用房外应整层架空。

二、建筑物屋顶用房累计面积不大于屋顶面积25%。

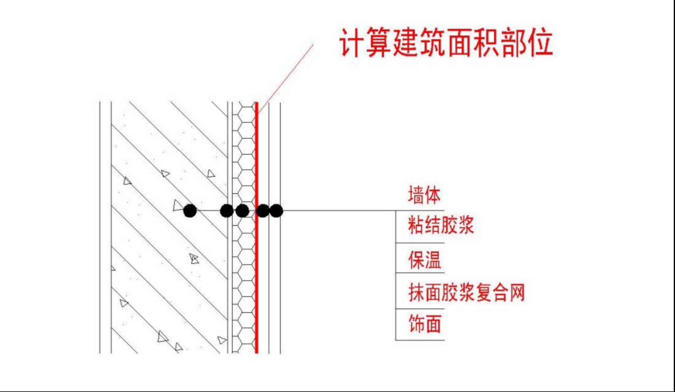
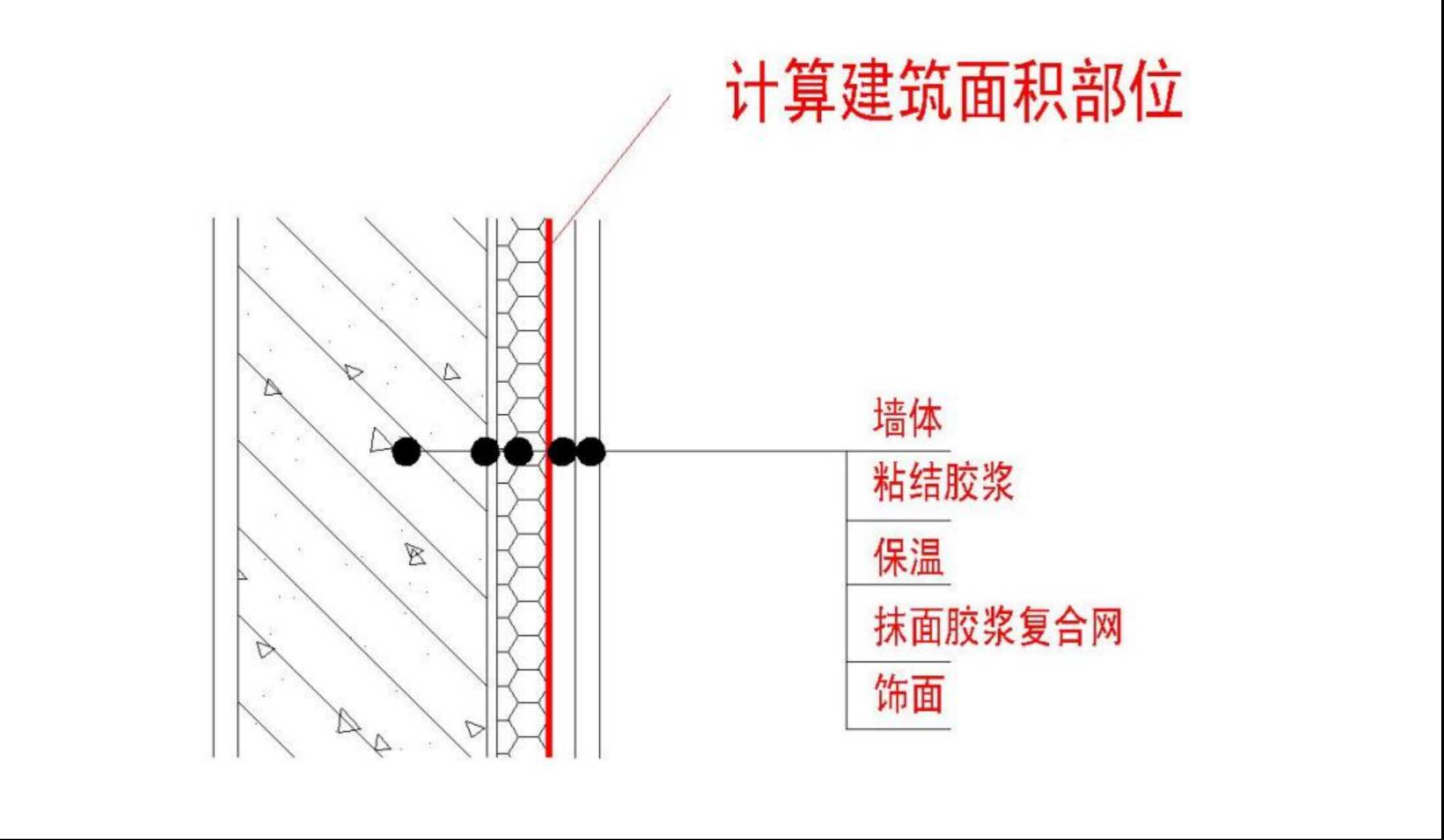
三、外墙装饰面示意。

四、客厅挑空部分示意。

五、无论阳台封闭与否,进深不超过2.1米的部分均按照1/2建筑面积计入容积率。

一、起草背景
2023年7月24日召开的中央政治局会议提出,“适应我国房地产市场供求关系发生重大变化的新形势,适时调整优化房地产政策”。2月18日,省委、省政府召开的全省高水平开放暨高质量招商引资大会上,林武书记强调,要重视房地产行业的发展,出台一揽子政策,刺激行业健康发展,提升居住建筑品质。目前,青岛市已出台了相关措施,促进房地产市场平稳健康发展,支持高品质住宅开发建设,促进房地产市场平稳健康发展。
二、出台目的
为提升新区居住品质,提高住宅产品吸引力,从政策端推动房地产市场有序发展,提振新区经济形势,区自然资源局学习借鉴了广州等地区的先进做法,根据《山东省青岛西海岸新区条例》先行先试有关规定,结合新区实际,研究起草了《青岛西海岸新区优化居住建筑品质的七条措施(试行)》(以下简称《措施》)。
三、执行范围
未办理房屋预售手续的整宗土地上的住宅工程可执行上述措施。
四、主要内容
《措施》主要从建筑面积计算方法、土地出让竞买保证金等方面进行了优化,部分公共服务配套设施计算建筑面积但不计算容积率,土地出让竞买保证金从100%缴纳降到最低比例(起始价的20%)。
一、鼓励提高公服配套标准
《措施》鼓励有条件的新建住宅工程在除低层住宅外的住宅底层设置不低于3.9m的架空层,打造丰富的公共开放空间空间,丰富居民的空间交互体验。将新建住宅小区内按照相关规范要求配置的配电室、换热站、公厕、垃圾分类收集用房、快递末端公共服务站、助老大食堂等公共服务设施纳入不计入容积率建筑面积的范围,鼓励提高住宅小区公服配套设置标准,改善住宅区人居环境。
为降低火灾风险,提升人居环境的安全性,《措施》将独立设置的电动自行车集中存放和充电场所同步纳入不计入容积率建筑面积的情形,同时,作为地下通道的一部分的非机动车坡道和机动车坡道的轻质结构车库出入口顶棚也纳入不计入容积率建筑面积的情形。
二、提高住宅居住舒适度
后疫情时代人们对于居住品质提出了更高的要求,为推进高品质住宅建设,在综合考虑我区日照条件的情况下,《措施》将对于生活阳台的计容宽度限制由原来的1.8m放宽至2.1m。同时,为保障阳台封闭建设的安全性和标准化,减少高空坠物的风险,提升居住小区建筑立面品质,《措施》并未区分开敞式阳台和封闭式阳台的计容要求,其实质上是对开发商建设封闭式阳台的鼓励,旨在让老百姓住的省心、住的安心、住的宽心。
另外,为适应当前高品质住宅层高的要求,套内建筑面积超过144㎡的住宅,《措施》第四条将其起居室挑空部分层高限制放宽为不大于两层层高。
三、明确不动产测绘面积计算方法和土地复核规则
为保证措施贯彻实施,文件约定了项目建成后土地复核和不动产登记环节对建筑面积的认定方法。测绘单位在进行房屋预、实测时,文件中按照《房产测量规范》(GB/T17986-2000)需进行分摊的部分,不计入分摊面积,单独计算面积。宗地内规划楼栋全部建成后,根据项目建设单位委托测绘机构出具的不动产测量报告及相关部位面积说明,完成土地复核业务后,按照土地复核结果进行成果入库并办理不动产登记手续。土地复核和房屋实测面积复核时,按照规划审批的计容面积办理。规划批准的不计入容积率部分实测面积超出规划审批但符合规划竣工核实要求的面积可直接办理不动产登记。
四、优化房地产开发用地出让条件
综合地块位置、所在区域新建商品房和土地成交价格,考量房企开发利润,科学设定土地出让起拍价格。土地出让竞买保证金的缴纳比例由起始价的100%降低至起始价的20%。
附件
相关图示
一、首层除必要的垂直交通空间、入口大堂及设备设施用房外应整层架空。

二、建筑物屋顶用房累计面积不大于屋顶面积25%。

三、外墙装饰面示意。

四、客厅挑空部分示意。

五、无论阳台封闭与否,进深不超过2.1米的部分均按照1/2建筑面积计入容积率。

为提升新区居住品质,提高住宅产品吸引力,从政策端推动房地产市场有序发展,提振新区经济形势,区自然资源局起草了《青岛西海岸新区优化居住建筑品质的七条措施(试行)》。根据相关要求,于2024年2月21日至3月21日在青岛西海岸新区政务网发布了关于对公开征求社会公众意见建议的公告,面向社会各界公开征集意见。公示结束后,未收到社会各界反馈意见。
青岛西海岸新区自然资源局
2024年3月22日
(联系人:王工 联系电话:85166673)
区自然资源局从青岛西海岸新区专家库专家名单中抽取5名专家组成论证专家组,向专家发出邀请函,开展《青岛西海岸新区优化居住建筑品质的七条措施(试行)》的论证工作。
专家组经质询与讨论,一致认为:《措施》从计容建筑面积计算方法、房产测绘与土地复核、土地出让竞买保证金等方面进行了优化,有利于新区房地产市场平稳健康发展,其内容在必要性、可行性、合法性、科学性、经济效益、可能面临风险等方面基本可行,建议进一步衔接相关规范、规定的相关内容,优化《措施》相关条款。
专家组一致同意通过评审,建议按程序报批。
评估事项:
《措施》发布实施可能面临的社会稳定、安全生产、财政经济、廉洁性、法律纠纷和专业技术等方面问题,全面、深入分析《青岛西海岸新区优化居住建筑品质的七条措施(试行)》风险因素和风险点,提出风险防范化解措施和应急措施。
评估方法:
依据《重大行政决策程序暂行条例》(中华人民共和国国务院令第713号)、《山东省重大行政决策程序规定》(山东省人民政府令第336号)、《青岛市重大行政决策程序规定》(市政府令第271号)、《青岛西海岸新区(黄岛区)重大行政决策程序规定》(青西新管发〔2020〕28号)等文件要求,针对《措施》采用专家打分法的方式进行风险评估。
评估过程:
2024年3月,编制形成《〈青岛西海岸新区优化居住建筑品质的七条措施(试行)〉风险评估报告》。
评估结果:
前期,区自然资源局广泛征求有关部门、行业企业和社会公众的意见建议,邀请专家进行论证并修改完善《措施》,作了风险程度评估及风险等级判断,总体来看,《措施》风险评估结果为低风险,风险整体可控。
经相关专家、司法局进行合法性审查,无违反法律、法规等内容。
该重大决策经第三届人民政府35次常务会议审议通过。
2024年4月3日下午,区自然资源局局长王慧作了《关于<青岛西海岸新区优化居住建筑品质的七条措施(试行)>起草情况的汇报》(简称《措施》)
会议原则同意汇报意见。强调,《措施》结合新区实际,借鉴国内南方地区先进经验做法,在法治框架内积极探索和创新优化,实现了“让利于民、让利于企”,对提升新区居住品质、激发房地产企业投资意愿、推动房地产市场健康有序发展具有重要意义。
会议确定:
(一)区自然资源局负责:
1.根据会议研究讨论意见,进一步修改完善《措施》,按程序印发实施。同时,会同住建局扎实稳妥推进,并做好政策年度评估工作,相关情况报新区管委区政府。
2.住建局、工委宣传部配合,通过新闻发布会等形式多渠道做好政策宣传解读,加强正面引导,确保好事办好。
(二)区市场监管局负责,做好房地产企业宣传监管工作。